Altenstadt-Rodenbach, Architektenhaus ohne Käuferprovision!
63674 Altenstadt, Einfamilienhaus zum Kauf
Kontaktdaten
-
NameHerr Martin Heidtmann
-
FirmaHWH Immobilien
-
AdresseFriedberger Straße 102
61118 Bad Vilbel -
E-Mail Zentrale
-
Tel. Zentrale
-
Fax+49 6101 500108
Objektdaten
-
Objekt ID3529 206
-
ObjekttypenEinfamilienhaus, Haus
-
Adresse(Einfamilienhaus)
63674 Altenstadt -
Etage2
-
Etagen im Haus2
-
Wohneinheiten2
-
Wohnfläche ca.276 m²
-
Nutzfläche ca.40 m²
-
Grundstück ca.1.091 m²
-
Zimmer5
-
Schlafzimmer4
-
Wohn-Schlafzimmer2
-
Badezimmer3
-
Separate WC1
-
HeizungsartZentralheizung
-
Wesentlicher EnergieträgerÖl
-
Baujahr1972
-
Letzte Modernisierung2005
-
Stellplätze gesamt2
-
Garage1 Stellplatz
-
KäuferprovisionKeine Käuferprovision!
-
Kaufpreis587.000 EUR
Ausstattung / Merkmale
- ✓ Einbauküche
- ✓ Einliegerwohnung
- ✓ Garage
- ✓ Kabel-/Sat-TV
- ✓ Pantry
- ✓ Parkettboden
- ✓ Separates WC
- ✓ Wasch-/Trockenraum
Energieausweis
-
EnergieausweistypBedarfsausweis
-
Gültig bis05.08.2034
-
Baujahr lt. Energieausweis1972
-
Wesentlicher EnergieträgerÖl
-
Endenergiebedarf173,60 kWh/(m²·a)
-
EnergieeffizienzklasseF
Objektbeschreibung
Beschreibung
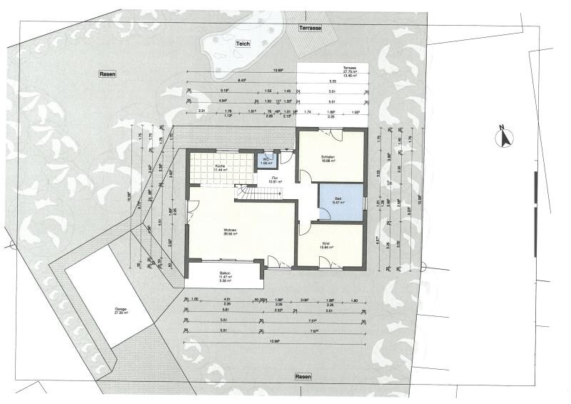
Das Architektenhaus wurde großzügig und individuell auf dem weitläufigen Hanggrundstück errichtet und optimal dem Sonnenlauf angepasst. Dem großzügigen Wohnbereich und der offen gestalteten Küche ist ein hausbreiter Balkon, mit Blick über den Ort und die umliegenden Felder vorgelagert.
Die gut dimensionierten Schlafräume und das mittig angeordnete, schicke Tageslichtbad bilden einen eigenen Bereich auf diesem Stockwerk.
Vom Wohnzimmer führt eine langgezogene Treppe in das, weit über 70 m² große Dachstudio mit Raum für einen weiteren Wohnbereich und / oder einen großzügigen Arbeitsbereich.
Das Gartengeschoß ist über einen separaten Eingang individuell begehbar, besteht aus 2 Schlafzimmern, einer Kochnische mit Einbauküche und eine eigene Terrasse. Einer getrennten Vermietung dieser Einheit steht nichts im Wege.
Auf dieser Ebene stehen Ihnen ebenso ein weiteres Schlafzimmer als Gästebereich, ein Kellerraum, die Heizung mit Öl-Lager und die Waschküche zur Verfügung.
Der Garten ist weitläufig, in verschiedenen Ebenen angelegt und verfügt über eine Teichanlage mit einer weiteren Terrasse.
Das Haus wurde 1972 in Massivbauweise errichtet und 2005 vollständig saniert, mit Fußbodenheizung ausgestattet, neue Parkettböden verlegt und mit neuen Fenstern ausgestattet.
Es bereitet viel Freude diese Immobilie präsentieren zu dürfen und wir freuen uns auf den Besichtigungstermin mit Ihnen.
Ausstattung
Parkett, Fußbodenheizung, Kat-Verkabelung, 2 Bäder, 2 Einbauküchen, Einliegerwohnung, Garage.
1 Balkon und 1 Terrasse
2 Einbauküchen, jeweils in der Hautwohnung und in der Einliegerwohnung.
Fliesen und hochwertiges Parkett
Keller mit Einliegerwohnung, 2 Bädern Terrasse, separatem Eingang und Gästezimmer.
Waschmaschinenraum vorhanden
Sonstige Informationen
Bitte haben Sie Verständnis dafür, dass wir Anfragen ohne vollständige Kontaktangaben (Anschrift, Telefonnummer) nicht bearbeiten können.
Mit der Immobilienanfrage erklären sich Interessenten einverstanden, dass die HWH-Immobilien wegen Objektangeboten telefonisch, schriftlich oder per E-Mail Kontakt aufnimmt.
Lage
Altenstadt ist tatsächlich an einer "alten Statt" entstanden, nämlich an der Stelle eines Limeskastells, das die Römer etwa 85 n. Chr. in Sichtweite des Glaubergs errichteten. Heute ist Altenstadt eine aufstrebende Kleinstadt im Nord-Osten der Wetterau mit allen Einkaufsmöglichkeiten, 5 Kindertagesstätten Grundschule und Autobahnanschluss an die A45. Trotz der dynamischen Expansion in den letzten Jahrzehnten hat die Stadt seine historischen Wurzeln als Mittelpunkt eines uralten Kulturraums bewahrt und ist im Kern eine lebens- und liebenswerte "alte Stadt" geblieben.
Die zum Verkauf kommenden Immobilie befindet sich im beschaulichen Ortsteil Rodenbach, in wunderschöner Hanglage mit unverbaubarem Blick über den Ort.
Die ungefähre Position der Immobilie auf Google Maps ansehen (Link auf externe Website)














