Komplett renoviert mit Fernblick in Kriftel!
65830 Kriftel, Wohnung zum Kauf
Kontaktdaten
-
NameHerr Martin Heidtmann
-
FirmaHWH Immobilien
-
AdresseFriedberger Straße 102
61118 Bad Vilbel -
E-Mail Zentrale
-
Tel. Zentrale
-
Fax+49 6101 500108
Objektdaten
-
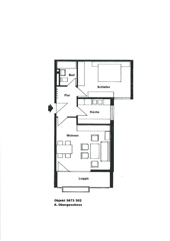
Objekt ID3673 302
-
ObjekttypWohnung
-
Adresse(2-Zimmer-Wohnung)
65830 Kriftel -
Etage6
-
Etagen im Haus8
-
Wohneinheiten48
-
Wohnfläche ca.59,99 m²
-
Gesamtfläche ca.59,99 m²
-
Zimmer2
-
Schlafzimmer1
-
Wohn-Schlafzimmer1
-
Badezimmer1
-
HeizungsartZentralheizung
-
Wesentlicher EnergieträgerGas
-
Baujahr1976
-
Letzte Modernisierung2026
-
Stellplätze gesamt1
-
ProvisionspflichtigJa
-
Käuferprovision2,975 % des protokollierten Kaufpreises für den Käufer und Verkäufer zzgl. MwSt.
-
Hausgeld315 EUR
-
Kaufpreis237.000 EUR
Ausstattung / Merkmale
- ✓ Fliesenboden
- ✓ Keller
- ✓ Laminatboden
- ✓ Personenaufzug
- ✓ Tiefgarage
Energieausweis
-
EnergieausweistypVerbrauchsausweis
-
Gültig bis11.07.2028
-
Baujahr lt. Energieausweis1976
-
Wesentlicher EnergieträgerGas
-
Endenergieverbrauch145,00 kWh/(m²·a)
-
Warmwasser enthaltenja
-
EnergieeffizienzklasseE
Objektbeschreibung
Kurzbeschreibung
TG-Stellplatz ist im Kaufpreis inkl.
Beschreibung
Das gepflegte Mehrfamilien-Haus wurde in den letzten Jahren modernisiert und die Fenster wurden in 3-fach verglaste, energieeffiziente Profile getauscht.
Die Wohnung selbst bietet ausreichend Platz für ein bis zwei Personen. Nach erfolgter Renovierung präsentiert sie sich in einem ansprechenden, modernen Zustand und kann ohne weiteren Aufwand bezogen werden.
Ein geräumiger Kellerraum gehört ebenso zur Wohnung und schafft zusätzlichen Stauraum. Der im Kaufpreis bereits enthaltene Tiefgaragenstellplatz ist bequem erreichbar und rundet das Angebot ideal ab.
Ob zur Eigennutzung oder als Kapitalanlage – diese Immobilie bietet vielseitige Möglichkeiten. Besonders hervorzuheben ist das attraktive Preis-Leistungs-Verhältnis, das vergleichbare Angebote am Markt nur selten bieten.
Ausstattung
Einbauküche, neuwertiges Duschbad, Laminatboden, große Loggia mit Fernblick, Tiefgaragenplatz inklusive.
Loggia
EBK vorhanden
Laminatboden
Kellerraum
Waschmaschinenanschluss in der Wohnung
TG-Stellplatz ist im Kaufpreis inkl.
Sonstige Informationen
Bitte haben Sie Verständnis dafür, dass wir Anfragen ohne vollständige Kontaktangaben (Anschrift, Telefonnummer) nicht bearbeiten können.
Mit der Immobilienanfrage erklären sich Interessenten einverstanden, dass die HWH-Immobilien wegen Objektangeboten telefonisch, schriftlich oder per E-Mail Kontakt aufnimmt.
Lage
Kriftel liegt zwischen Frankfurt am Main und der Landeshauptstadt Wiesbaden. Den mittlerweile rund 11.000 Einwohnern bietet der Ort ein breit gefächertes Angebot an Kindertagesstätten, Schulen und Sportmöglichkeiten. Kriftels beliebtestes Ausflugsziel ist der Freizeitpark, eine großzügige Grünanlage mit verschiedenen Freizeitangeboten. Ebenso befindet sich hier das Krifteler Freibad.
Die ungefähre Position der Immobilie auf Google Maps ansehen (Link auf externe Website)








